Ihr Ansprechpartner:
  • Bernhard Orth
  • info@orth-engineering.de
  • 0177 - 605 30 49

Social Media:

E-Plan Konstruktion

Elektroplanung & EPLAN Konstruktion

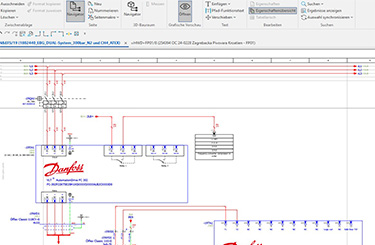
Orth Engineering erstellt normgerechte Schaltpläne und Konstruktionszeichnungen im Anlagen-, Maschinen- und Sondermaschinenbau. Dank langjähriger Erfahrung in unterschiedlichen Branchen – Maschinenbau, Automotive, Nahrungsmittelindustrie, Wasseraufbereitung, Anlagenbau, sowie Industrie- und Gebäudeautomatisierung – werden auch komplexe Projekte sicher umgesetzt. Die Dienstleistung umfasst:

  • Planung, Schaltplanerstellung und Dokumentation mit EPLAN P8
    (Aufbaupläne, Kabellisten, Stücklisten, Klemmenpläne)
  • Komponentenauswahl, Auslegung und Retrofit bestehender Anlagen
  • Revision und Aktualisierung alter Schaltpläne
  • Validierung von Sicherheitsfunktionen mit Sistema
  • Mehrsprachige Dokumentation für internationale Projekte

Nachhaltige und zukunftsfähige Elektroplanung

Durch den Einsatz moderner CAE-Software, wie EPLAN Electric P8, entwickeln wir den digitalen Zwilling Ihrer Schaltanlage. Das vereinfacht die Abstimmung mit allen Projektbeteiligten bereits in der Planungsphase. Die konsequente Nutzung standardisierter Makros sorgt für eine hohe Wiederverwendbarkeit und trägt dazu bei, Fehler zu minimieren. Energieeffizienz und modulare Erweiterbarkeit behalten wir bei der Auswahl der Komponenten stets im Blick. Artikel- und Summenstücklisten können direkt an einen Schaltanlagenbau weitergeleitet werden. Dadurch erhalten Sie nicht nur eine präzise Dokumentation, sondern auch eine nachhaltige und zukunftsfähige Elektroplanung.

E-Plan Konstruktion

Kernkompetenzen

EPLAN-Konstruktion

präzise, normgerecht, zukunftsfähig

Projektplanung & -leitung

effizient, transparent und praxisorientiert

Von der Idee bis zur Umsetzung

Wir begleiten Sie von der ersten Skizze, über normgerechte Schaltpläne, bis hin zur vollständigen Dokumentation. Präzision, Effizienz und Erweiterbarkeit stehen dabei im Vordergrund.